Description
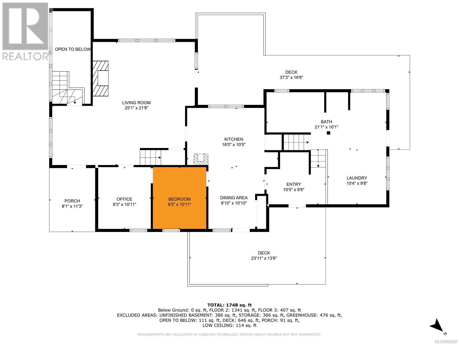
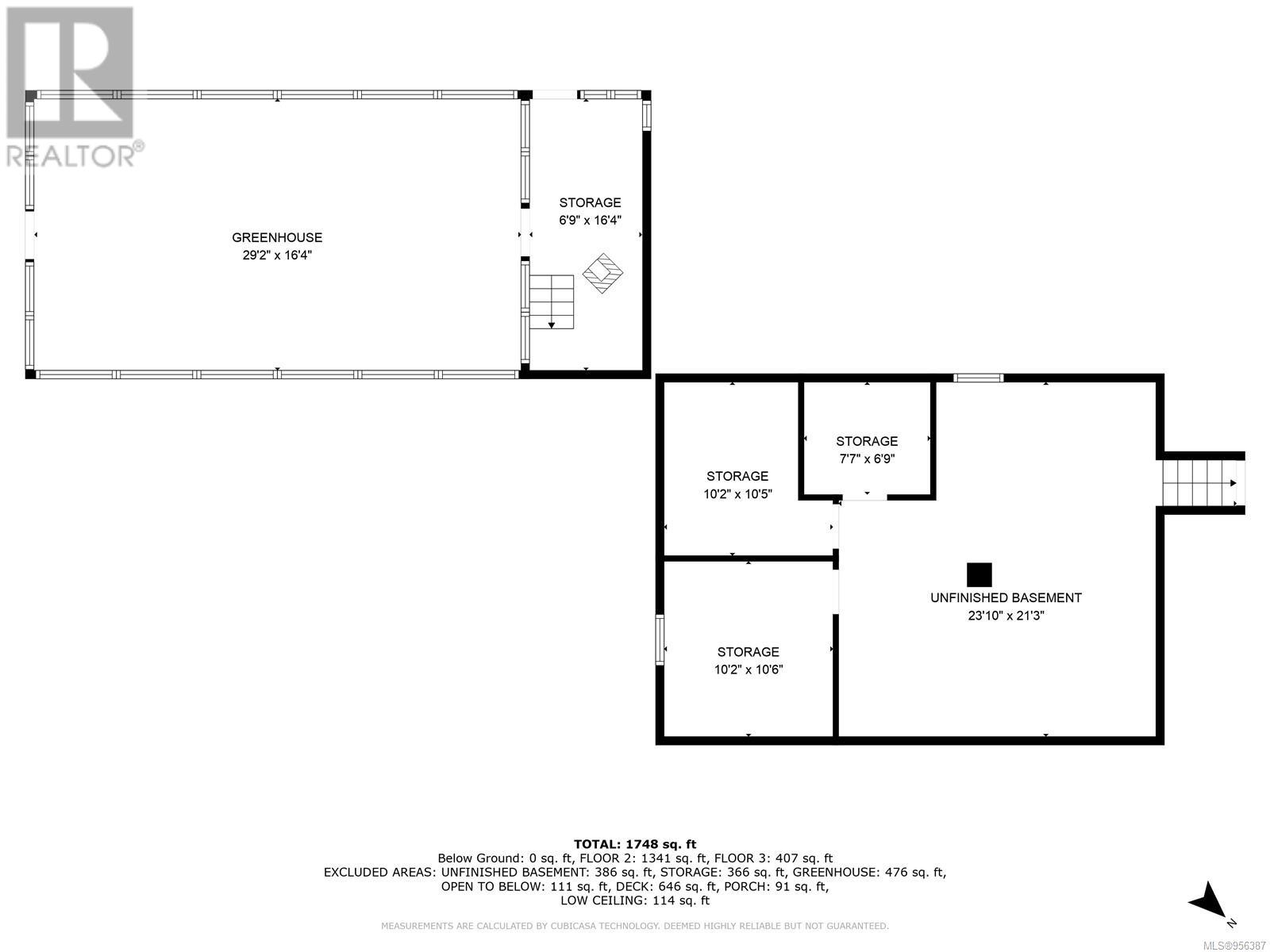
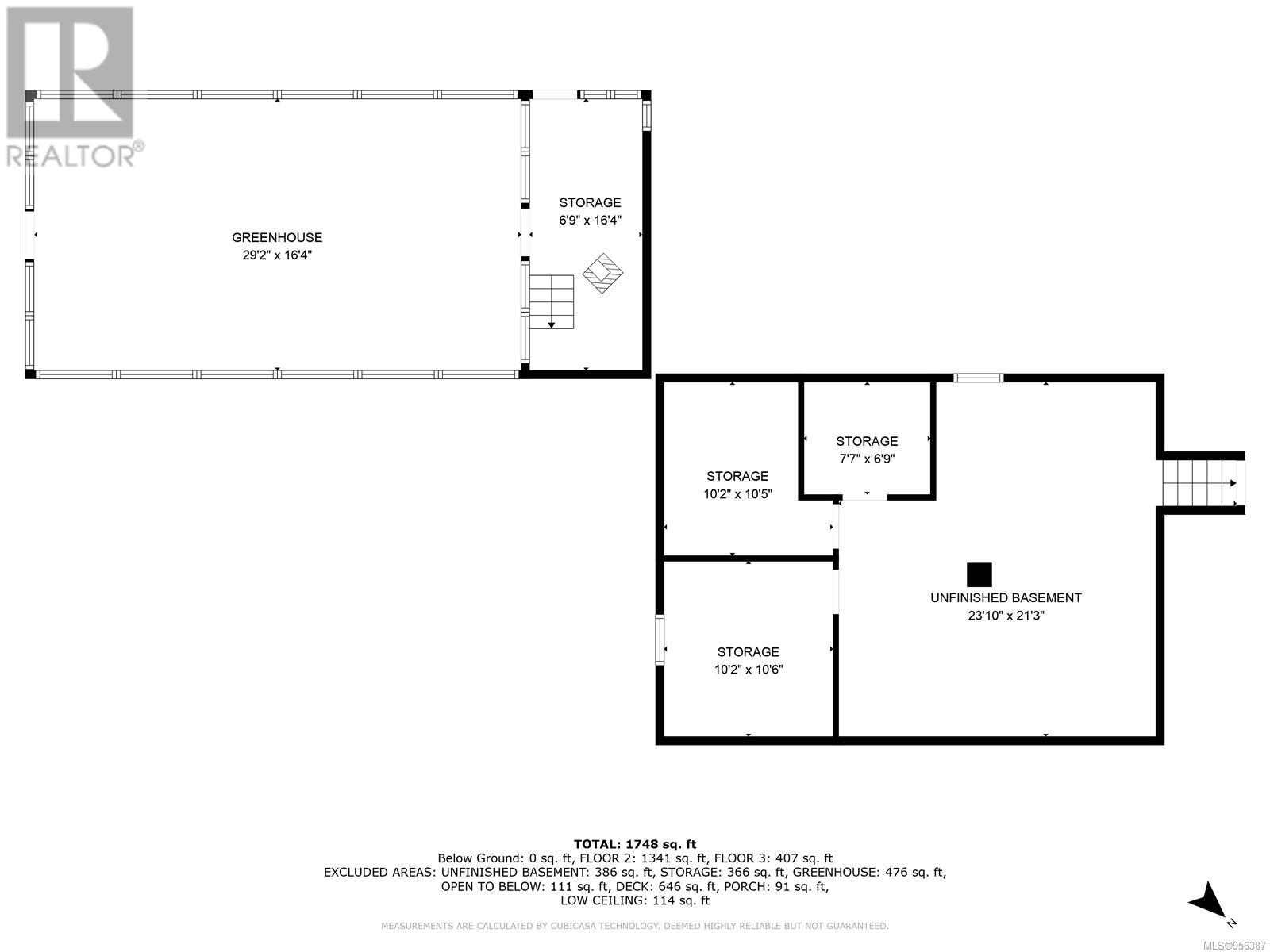
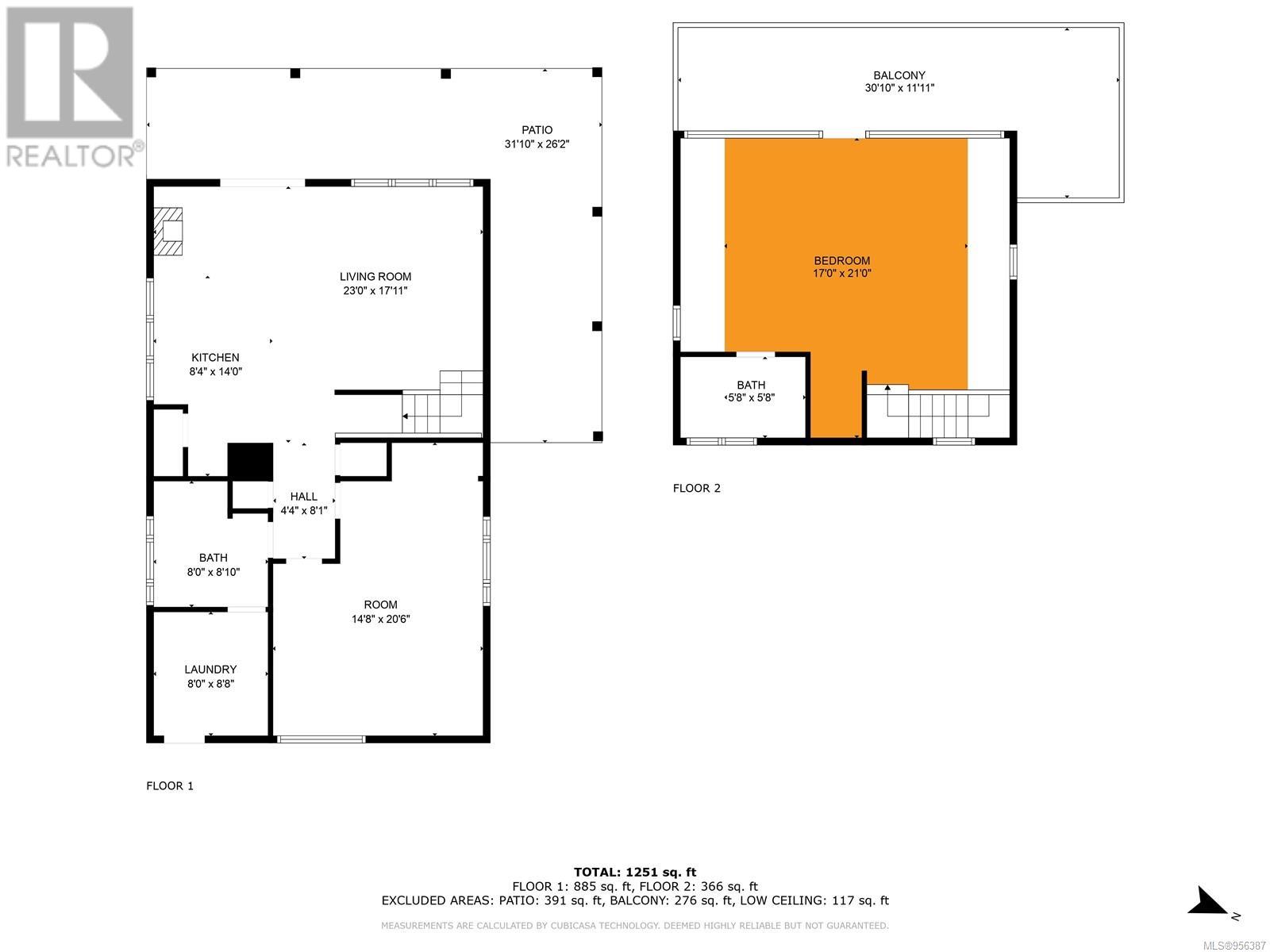
Discover Terra Nova Farms on Quadra Island, BC, spanning 106 acres with 2,400+ linear feet of high bank waterfront. This amazing property boasts of two homes and a caretaker's suite. Enjoy diverse agricultural ventures across acres of fertile land, including orchards with 800 apple trees, kiwi fruit, blueberry patches, plum, figs, and grape vines—too many to mention. Multiple greenhouses and irrigation systems ensure bountiful harvests while conserving water resources. With 76 acres in the Agriculture Land Reserve and 30 acres zoned RU-1 waterfront, Terra Nova Farms offers versatility for farming, residential, or recreational use. Experience Quadra Island's outdoor paradise, from whale watching to hiking, right at your doorstep. Four more houses plus one more secondary dwelling are allowed. Plus, a development opportunity, as a strata subdivision of three 5-acre waterfront lots, is near completion. Contact the listing agent for more details. shane@shanehedefine.com. Watch the Video:) (id:2469)
Features
Acreage, Other, Marine Oriented
Listing Provided By
RE/MAX Check Realty
Neighborhood Info
Copyright and Disclaimer
All information displayed is believed to be accurate, but is not guaranteed and should be independently verified. No warranties or representations of any kind are made with respect to the accuracy of such information. Not intended to solicit properties currently listed for sale.
The trademarks REALTOR®, REALTORS® and the REALTOR® logo are controlled by The Canadian Real Estate Association (CREA) and identify real estate professionals who are members of CREA. The trademarks MLS®, Multiple Listing Service® and the associated logos are owned by CREA and identify the quality of services provided by real estate professionals who are members of CREA.
REALTOR® contact information provided to facilitate inquiries from consumers interested in Real Estate services. Please do not contact the website owner with unsolicited commercial offers.
 
     Send us your questions about this property and we'll get back to you right away.
Send this to a friend, or email this to yourself
Property Details
Real Estate Listing
Provided by:
- Sandy McManus
- Phone: 250-744-3301
- Email: SandyMcManusRealty@shaw.ca
- 4440 Chatterton Way
- Victoria, BC
- V8X 5J2
 
                         
												 
                                                                     
                                                                     
                                                                     
                                                                     
                                                                     
                                                                     
                                                                     
                                                                     
                                                                     
                                                                     
                                                                     
                                                                     
                                                                     
                                                                     
                                                                     
                                                                     
                                                                     
                                                                     
                                                                     
                                                                     
                                                                     
                                                                     
                                                                     
                                                                     
                                                                     
                                                                     
                                                                     
                                                                     
                                                                     
                                                                     
                                                                     
                                                                     
                                                                     
                                                                     
                                                                     
                                                                     
                                                                     
                                                                     
                                                                     
                                                                     
                                                                     
                                                                     
                                                                     
                                                                     
                                                                     
                                                                     
                                                                     
                                                                     
                                                                     
                                                                     
                                                                     
                                                                     
                                                                     
                                                                     
                                                                     
                                                                     
                                                                     
                                                                     
                                                                     
                                                                     
                                                                     
                                                                     
                                                                     
                                                                     
                                                                     
                                                                     
                                                                     
                                                                     
                                                                     
                                                                     
                                                                     
                                                                     
                                                                     
                                                                     
                                                                     
                                                                     
                                                                     
                                                                     
                                                                     
                                                                     
                                                                     
                                                                     
                                                                     
                                                                     
                                                                     
                                                                     
                                                                     
                                                                     
                                                                    